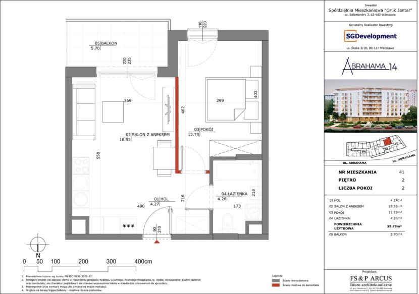
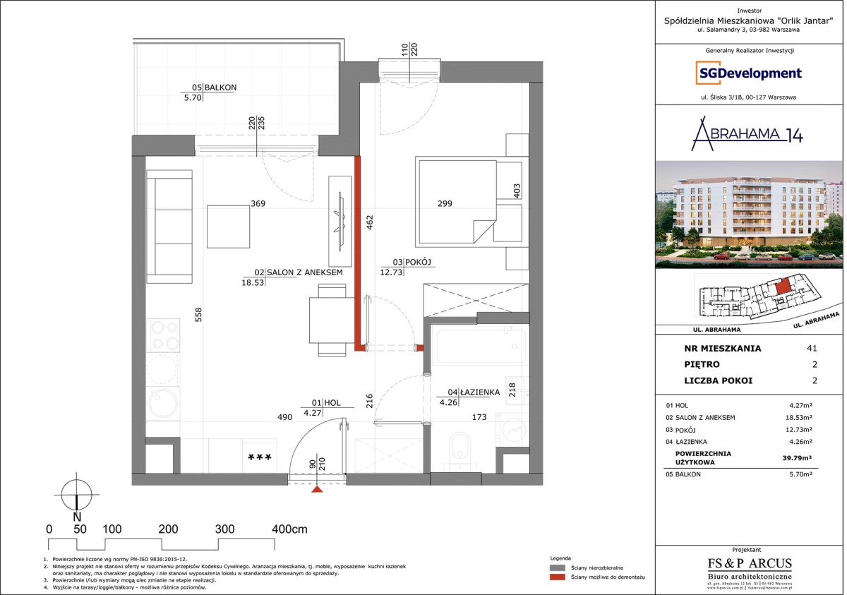
Rezerwacja
  • Pokoje:2
  • Powierzchnia:39.79 m2
  • Balkon:5.70 m2

Zapytaj o MIESZKANIE 41

Treści znajdujące się na stronie internetowej nie stanowią oferty w rozumieniu przepisów prawa
i winny być interpretowane wyłącznie jak informacja, o których jest mowa w art. 71 Kodeksu Cywilnego

ⓒ SGDevelopment, 2023