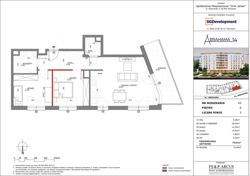
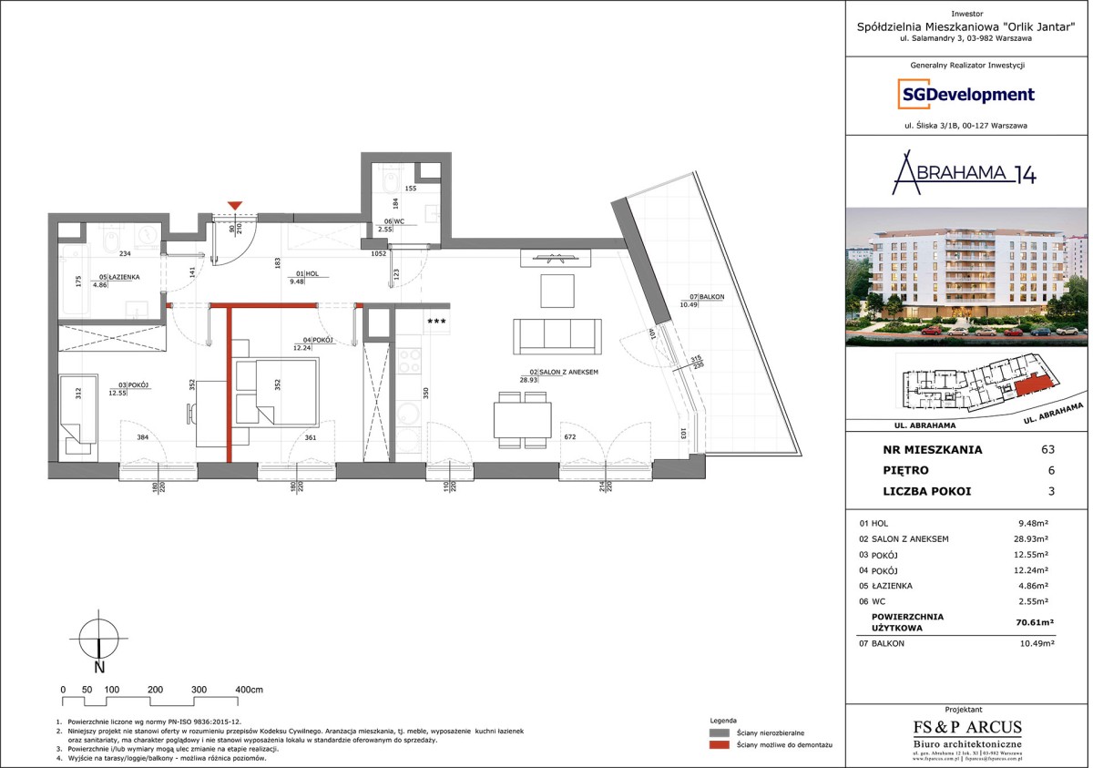
Rezerwacja
  • Pokoje:3
  • Powierzchnia:70.61 m2
  • Balkon:10.49 m2

Zapytaj o MIESZKANIE 63

Treści znajdujące się na stronie internetowej nie stanowią oferty w rozumieniu przepisów prawa
i winny być interpretowane wyłącznie jak informacja, o których jest mowa w art. 71 Kodeksu Cywilnego

ⓒ SGDevelopment, 2023