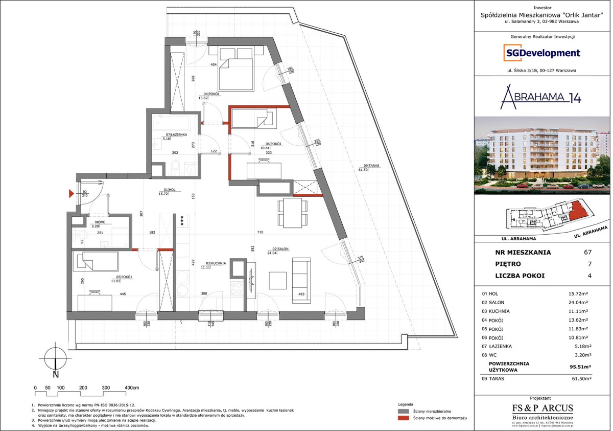
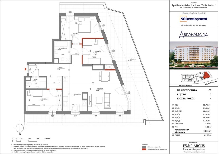
Sprzedane
  • Pokoje:4
  • Powierzchnia:95.51 m2
  • Taras:61.50 m2

Zapytaj o MIESZKANIE 67

Treści znajdujące się na stronie internetowej nie stanowią oferty w rozumieniu przepisów prawa
i winny być interpretowane wyłącznie jak informacja, o których jest mowa w art. 71 Kodeksu Cywilnego

ⓒ SGDevelopment, 2023