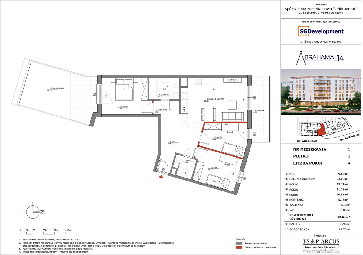
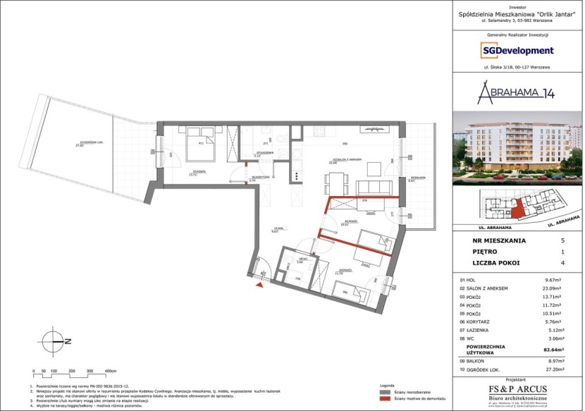
Dostępne
  • Pokoje:4
  • Powierzchnia:82.64 m2
  • Ogródek:27.20 m2
  • Balkon:8.97 m2

Zapytaj o MIESZKANIE 5

Treści znajdujące się na stronie internetowej nie stanowią oferty w rozumieniu przepisów prawa
i winny być interpretowane wyłącznie jak informacja, o których jest mowa w art. 71 Kodeksu Cywilnego

ⓒ SGDevelopment, 2023